Lorenzo Arch Nigro

MEMBRO DAL 08 Dic 2025
  • adobe creative suite
  • adobe illustrator
  • adobe indesign
  • adobe photoshop
  • paesaggista
  • design e grafica
  • archicad
  • autodesk
  • architettura del paesaggio
  • Architetto
  • modellazione 3d
  • disegno architettonico
  • rilievi architettonici
  • disegno tecnico architettonico
Totale
Puntualità
Budget
Comunicazione
  • architettura
  • Design e Grafica
  • Italia Veneto Venezia
  • Professionista con P.IVA

Servizi coperti

Lorenzo Nigro, Architetto con oltre cinque anni di esperienza nel territorio di Venezia e Mestre. Oltre ad avere un solido background accademico, inclusa la Laurea Magistrale in Architettura e Ingegneria edile (IUAV), ho ricoperto il ruolo di assistente docente del Professore ordinario Renato Rizzi.

Attualmente, mi occupo della progettazione di edifici legati all'ospitalità e di edifici per abitazione, avendo approfondito il tema residenziale contemporaneo e maturato studi sui progetti urbanistici di quartiere. Collaboro tutt'ora con lo studio Al Progetti s.r.l., garantendo precisione e competenza in tutte le fasi del progetto, con particolare attenzione all'analisi energetica e alla riqualificazione degli spazi.

La mia competenza tecnica spazia dai software BIM come Revit (BIM), ArchiCAD, AutoCAD e QGIS, fino alla padronanza della suite Adobe (Photoshop, Illustrator, InDesign), essenziale per la modellazione e le presentazioni professionali.

Per approfondimenti sulla mia esperienza e sui progetti, puoi visitare il mio profilo LinkedIn: www.linkedin.com/in/lorenzo-nigro-330582209

Marghera (Venezia) - Progetto riqualificazione urbana

Marghera (Venezia) - Progetto riqualificazione urbana

Marghera (Venezia) - Progetto riqualificazione urbana

Marghera (Venezia) - Progetto riqualificazione urbana

Marghera (Venezia) - Progetto riqualificazione urbana

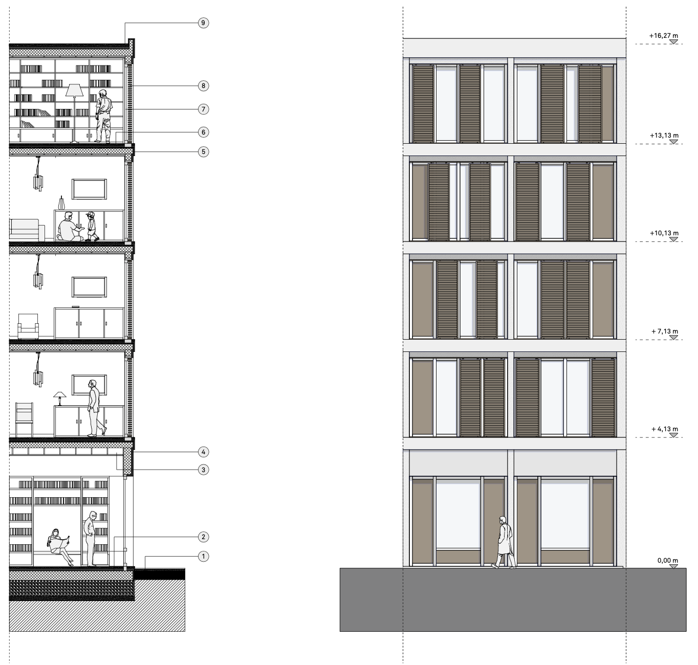
Milano - Progetto residenziale

Milano - Progetto residenziale

Milano - Progetto residenziale

Milano - Progetto residenziale

Milano - Progetto residenziale

Milano - Progetto riqualificazione urbana

Milano - Progetto riqualificazione urbana

Affianco costantemente la mia attività di Architetto con una grande cura per la grafica, l'impaginazione professionale e la visualizzazione, riconoscendo che la presentazione è fondamentale quanto il progetto stesso. Per questo motivo, offro servizi mirati per professionisti e aziende che cercano una comunicazione visiva di alto impatto. Mi occupo dell'organizzazione e della cura editoriale di tesi, report tecnici e presentazioni di concorso, garantendo sempre un layout pulito e coerente. Sviluppo anche elementi grafici su misura, inclusa la creazione di loghi, sempre strettamente collegati al progetto architettonico o all'identità visiva del cliente. Utilizzo la Suite Adobe (Photoshop, Illustrator e InDesign) che mi permette di curare ogni dettaglio grafico, trasformando le tue idee in presentazioni professionali efficaci e di grande impatto visivo.

Come Funziona AddLance

Cerchi un freelance? Trovalo GRATIS su AddLance

1

Invia la tua richiesta

Descrivi in un minuto ciò che deve essere eseguito. Nessun obbligo!

2

Confronta i preventivi

Ricevi offerte da professionisti italiani. È gratis e senza commissioni!

3

Scegli il professionista

Confronta, discuti e assegna il progetto solo se soddisfatto. È facile e sicuro!

Parlano di AddLance Lorenzo Arch Nigro Lorenzo Arch Nigro Lorenzo Arch Nigro Lorenzo Arch Nigro Lorenzo Arch Nigro Lorenzo Arch Nigro