Maria Luisa P

MEMBRO DAL 12 Mar 2025
Totale
Puntualità
Budget
Comunicazione
  • architettura
  • Italia Liguria Sestri Levante

Servizi coperti

Ho competenze professionali in home staging e architettura d' interni. Ho deciso di specializzarmi nel render 2D e ridisegno le planimetrie catastali arredandole, scegliendo uno stile grafico neutrale. Posso personalizzare le elaborazioni grafiche e inserire eventuale logo professionale. Collaboro molto con agenti immobiliari, ma anche con imprese edili e privati.

Planimetria catastale ridisegnata dipinta a mano libera con tempere

Planimetria catastale ridisegnata dipinta a mano libera con tempere.

Planimetria catastale ridisegnata dipinta a mano libera con tempere.

Planimetria catastale ridisegnata dipinta a mano libera con tempere.

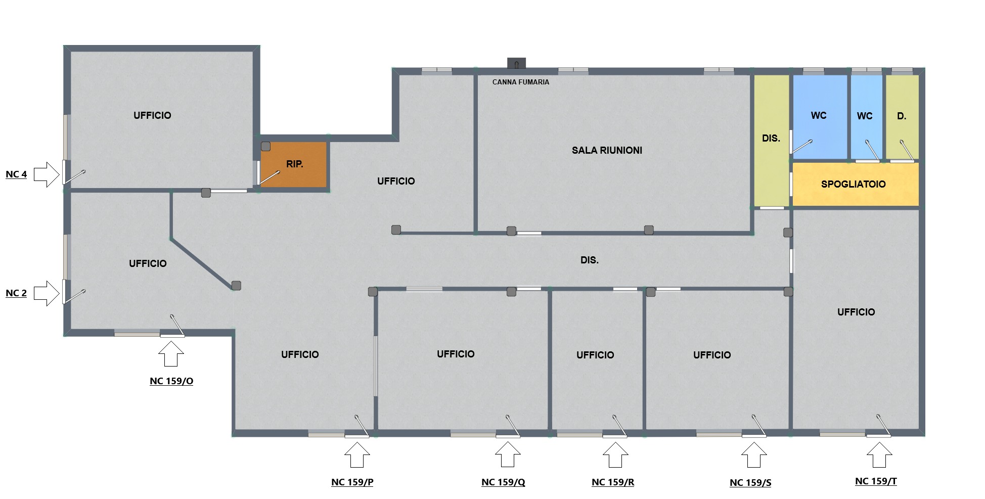
Planimetria BASE in render 2D

Planimetria BASE in render 2D.

Planimetria BASE in render 2D.

Planimetria BASE in render 2D.

Planimetria ARREDATA in render 2D.

Planimetria ARREDATA in render 2D.

Planimetria ARREDATA in render 2D.

Planimetria ARREDATA in render 2D.

Esperienze e Studi

home stager 
Interior designer 

Maestra d' arte  

Come Funziona AddLance

Cerchi un freelance? Trovalo GRATIS su AddLance

1

Invia la tua richiesta

Descrivi in un minuto ciò che deve essere eseguito. Nessun obbligo!

2

Confronta i preventivi

Ricevi offerte da professionisti italiani. È gratis e senza commissioni!

3

Scegli il professionista

Confronta, discuti e assegna il progetto solo se soddisfatto. È facile e sicuro!

Parlano di AddLance Maria Luisa P Maria Luisa P Maria Luisa P Maria Luisa P Maria Luisa P Maria Luisa P